Zadávací dokumentace

Zadávací řízení: 17-075 Pohořelice – oprava zasedací místnosti a zázemí

Informace o dokumentu

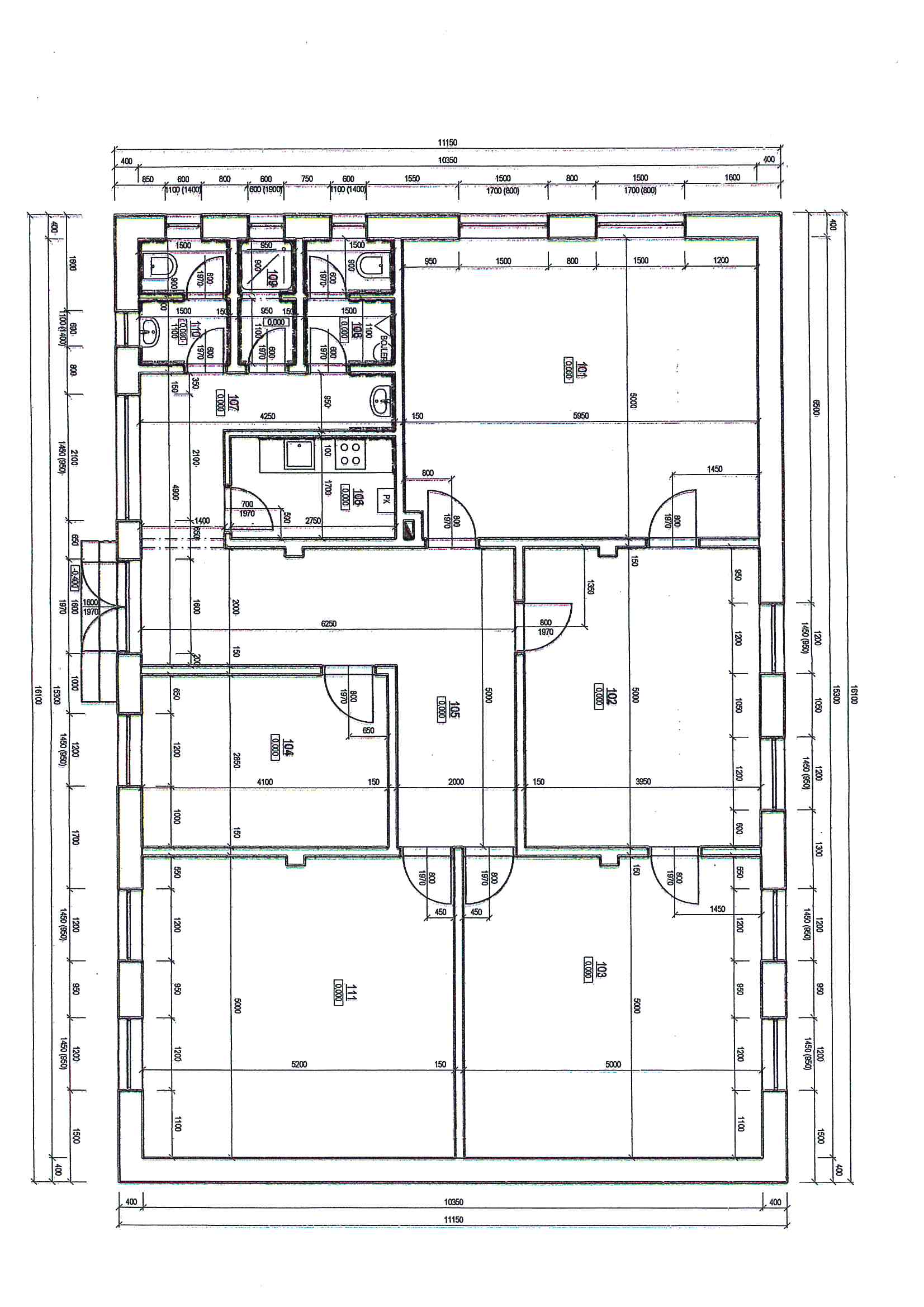
Název: 17-075 Příloha č.4B ZD
Popis: 17-075 Příloha č.4B ZD.

Aktuální verze souboru

Jméno souboru: Obrázek JPEG 17-075_Příloha č.4B ZD.jpg
Velikost: 233,66 KiB
Aktuální verze souboru: 29.11.2017 08:45:45
Otisk MD5: 3fe05821ebe2827bcb8bdeaa60d35c0a
Otisk SHA256: b8f67c010957e22b8f3d59f853c72befa3e5200c800e8f2984f2db9d9ea34cfc

Historie souboru

Datum Název Popis Typ dokumentu Jméno souboru Velikost
V 29.11.2017 08:45:45 17-075 Příloha č.4B ZD 17-075 Příloha č.4B ZD. zadávací dokumentace - 17-075_Příloha č.4B ZD.jpg 233,66 KiB